太陽生命神戸ビル
2階 33.30坪- 部屋番号
- 8013
写真をクリックすると大きく表示されます。
賃貸条件
- 賃料
- 相談
- 共益費・管理費
- 109,890円
- 月額合計
- 相談
- 坪単価(共益費込)
- 相談
- 入居日
- 即
- 敷金(保証金)
- 12ヶ月
- 礼金
- -
- 更新料
- -
※賃料、共益費には別途消費税が必要になります。
- 参考 三宮北の平均坪単価
- 13,308円
お電話でのお問い合わせはこちらから 0120-33-2303 平日9:00~21:00 土日祝対応可能
- 個別空調
- セキュリティシステム
- 24時間使用可能
- 光ファイバー
- 新耐震基準
- 大通り沿い
- エレベーター
物件概要
| 住所 | 兵庫県神戸市中央区中山手通2-1-8 |
|---|---|
| 最寄り駅 |
|
| 竣工 | 1985年10月 |
| 建物階数 | 地上7階 |
| 面積 |
33.30坪(110.09㎡) |
| 建物構造 | RC |
| 償却費 | - |
| 備考 | 太陽生命神戸ビルの近くには生田神社がございます。山手幹線に面しており、多少駅からの距離はございますがおススメの物件です。三宮北エリアで賃貸オフィス・貸事務所をお探しのお客様、条件のご相談や内覧のご要望などございましたらお気軽にゼロオフィスまでお問合せ下さいませ。 |
お電話でのお問い合わせはこちらから 0120-33-2303 平日9:00~21:00 土日祝対応可能
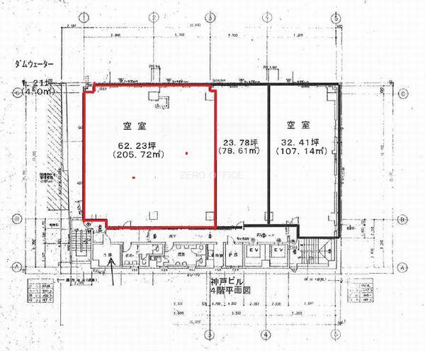
他フロアの空き状況
| お気入り | 階数 | 面積 | 賃料(共益費込) | 坪単価(共益費込) | 敷金(保証金) | 礼金 | 間取り | 詳細 |
|---|---|---|---|---|---|---|---|---|
|
お気に入り登録 お気に入り登録済 |
4階 | 32.41坪 (107.14㎡) | 相談 | 相談 | 12ヶ月 | - |
|
詳細を見る |
|
お気に入り登録 お気に入り登録済 |
4階 | 62.33坪 (206.06㎡) | 相談 | 相談 | 12ヶ月 | - | - | 詳細を見る |
同じエリアのおすすめ物件
-
三宮北
さくら三神ビル10階
- 賃料
- 相談
- 坪単価
- 相談
- 面積
- 51.41坪
- 最寄り駅
- JR東海道・山陽本線三ノ宮駅 徒歩1分
詳細を見る
-
三宮北
太陽生命神戸ビル4階
- 賃料
- 相談
- 坪単価
- 相談
- 面積
- 62.33坪
- 最寄り駅
- JR東海道・山陽本線三ノ宮駅 徒歩8分
詳細を見る
-
三宮北
三共三宮ビル4階
- 賃料
- 337,400円
- 坪単価
- 20,000円
- 面積
- 16.87坪
- 最寄り駅
- JR東海道・山陽本線三ノ宮駅 徒歩5分
詳細を見る
-
三宮北
三共三宮ビル5階
- 賃料
- 251,800円
- 坪単価
- 20,000円
- 面積
- 12.59坪
- 最寄り駅
- JR東海道・山陽本線三ノ宮駅 徒歩5分
詳細を見る
-
三宮北
P&Bビル1階
- 賃料
- 150,000円
- 坪単価
- 14,985円
- 面積
- 10.01坪
- 最寄り駅
- JR東海道・山陽本線三ノ宮駅 徒歩13分
詳細を見る
-
三宮北
マスダビル5階
- 賃料
- 158,250円
- 坪単価
- 7,500円
- 面積
- 21.10坪
- 最寄り駅
- JR東海道・山陽本線三ノ宮駅 徒歩10分
詳細を見る
-
三宮北
建創ビル6階
- 賃料
- 294,250円
- 坪単価
- 9,803円
- 面積
- 43.25坪
- 最寄り駅
- JR東海道・山陽本線三ノ宮駅 徒歩6分
詳細を見る
-
三宮北
三経ビル4階
- 賃料
- 110,000円
- 坪単価
- 13,262円
- 面積
- 9.35坪
- 最寄り駅
- JR東海道・山陽本線三ノ宮駅 徒歩1分
詳細を見る
-
三宮北
三共ビル7階
- 賃料
- 100,000円
- 坪単価
- 14,095円
- 面積
- 8.23坪
- 最寄り駅
- JR東海道・山陽本線三ノ宮駅 徒歩1分
詳細を見る
-
三宮北
ミズキビル6階
- 賃料
- 100,000円
- 坪単価
- 15,007円
- 面積
- 7.03坪
- 最寄り駅
- JR東海道・山陽本線元町駅 徒歩4分
詳細を見る
-
三宮北
太陽生命神戸ビル4階
- 賃料
- 相談
- 坪単価
- 相談
- 面積
- 32.41坪
- 最寄り駅
- JR東海道・山陽本線三ノ宮駅 徒歩8分
詳細を見る
-
三宮北
水木ビルディング4階
- 賃料
- 564,690円
- 坪単価
- 8,500円
- 面積
- 80.67坪
- 最寄り駅
- JR東海道・山陽本線三ノ宮駅 徒歩10分
詳細を見る


