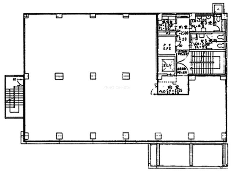
東武高輪第2ビル
5階 75.20坪- 部屋番号
- 134483
写真をクリックすると大きく表示されます。
賃貸条件
- 賃料
- 相談
- 共益費・管理費
- 203,040円
- 月額合計
- 相談
- 坪単価(共益費込)
- 相談
- 入居日
- 2026/2
- 敷金(保証金)
- 12ヶ月
- 礼金
- -
- 更新料
- -
※賃料、共益費には別途消費税が必要になります。
- 参考 品川・田町の平均坪単価
- 18,900円
お電話でのお問い合わせはこちらから 0120-33-2303 平日9:00~21:00 土日祝対応可能
- OAフロア
- 個別空調
- セキュリティシステム
- 24時間使用可能
- エレベーター
- 定期借家権
物件概要
| 住所 | 東京都港区高輪2-16-5 | |
|---|---|---|
| 最寄り駅 |
|
|
| 竣工 | 1964年05月 | |
| 建物階数 | 地上5階 地下1階 | |
| 面積 |
75.20坪(248.60㎡) |
|
| 建物構造 | SRC | |
| 償却費 | - | |
| 備考 | 東武高輪第2ビル(地下1階)は都営地下鉄浅草線の泉岳寺駅から徒歩2分の場所に位置している地上5階建ての賃貸オフィスビルです。港区品川・田町エリアで賃貸オフィス・貸事務所をお探しのお客様、条件のご相談や内覧のご要望などございましたらお気軽にゼロオフィスまでお問合せ下さいませ。 | |
2026/2
|
||
お電話でのお問い合わせはこちらから 0120-33-2303 平日9:00~21:00 土日祝対応可能
同じエリアのおすすめ物件
-
品川・田町
オーキッドプレイス田町ビル2階
- 賃料
- 相談
- 坪単価
- 相談
- 面積
- 71.40坪
- 最寄り駅
- 都営地下鉄三田線三田駅 徒歩5分
詳細を見る
-
品川・田町
三田UTビル5階
- 賃料
- 相談
- 坪単価
- 相談
- 面積
- 62.84坪
- 最寄り駅
- JR山手線田町駅 徒歩8分
詳細を見る
-
品川・田町
EARTH SHIBA BLD6階
- 賃料
- 414,585円
- 坪単価
- 20,000円
- 面積
- 22.41坪
- 最寄り駅
- 都営地下鉄三田線芝公園駅 徒歩3分
詳細を見る
-
品川・田町
EARTH SHIBA BLD1階
- 賃料
- 651,630円
- 坪単価
- 30,000円
- 面積
- 22.47坪
- 最寄り駅
- 都営地下鉄三田線芝公園駅 徒歩3分
詳細を見る
-
品川・田町
大滝ビル4階
- 賃料
- 相談
- 坪単価
- 相談
- 面積
- 133.05坪
- 最寄り駅
- JR山手線品川駅 徒歩12分
詳細を見る
-
品川・田町
浜松町PREX10階
- 賃料
- 2,654,300円
- 坪単価
- 38,000円
- 面積
- 69.85坪
- 最寄り駅
- JR山手線浜松町駅 徒歩6分
詳細を見る
-
品川・田町
浜松町PREX4階
- 賃料
- 2,654,300円
- 坪単価
- 38,000円
- 面積
- 69.85坪
- 最寄り駅
- JR山手線浜松町駅 徒歩6分
詳細を見る
-
品川・田町
THE PORTAL MITA5階
- 賃料
- 3,140,700円
- 坪単価
- 30,000円
- 面積
- 104.69坪
- 最寄り駅
- 都営地下鉄三田線三田駅 徒歩4分
詳細を見る
-
品川・田町
いちご聖坂ビル4階
- 賃料
- 相談
- 坪単価
- 相談
- 面積
- 43.80坪
- 最寄り駅
- 都営地下鉄三田線三田駅 徒歩7分
詳細を見る
-
品川・田町
浜松町PREX11階
- 賃料
- 2,654,300円
- 坪単価
- 38,000円
- 面積
- 69.85坪
- 最寄り駅
- JR山手線浜松町駅 徒歩6分
詳細を見る
-
品川・田町
いちご聖坂ビル3階
- 賃料
- 相談
- 坪単価
- 相談
- 面積
- 101.17坪
- 最寄り駅
- 都営地下鉄三田線三田駅 徒歩7分
詳細を見る
-
品川・田町
PMO高輪ゲートウェイ6階
- 賃料
- 相談
- 坪単価
- 相談
- 面積
- 80.90坪
- 最寄り駅
- 都営地下鉄浅草線泉岳寺駅 徒歩1分
詳細を見る
閲覧履歴
-
新橋・虎ノ門・浜松町
VILLA芝大門5階
- 賃料
- 577,360円
- 坪単価
- 28,000円
- 面積
- 20.62坪
- 最寄り駅
- 都営地下鉄浅草線大門駅 徒歩2分
詳細を見る
-
六本木・麻布
東麻布アベビル3階
- 賃料
- 932,740円
- 坪単価
- 18,000円
- 面積
- 62.60坪
- 最寄り駅
- 都営地下鉄大江戸線赤羽橋駅 徒歩6分
詳細を見る
-
飯田橋・九段
砂川ビル1階
- 賃料
- 360,000円
- 坪単価
- 15,652円
- 面積
- 23.00 坪
- 最寄り駅
- 東京メトロ東西線九段下駅 徒歩7分
詳細を見る
-
六本木・麻布
協電ビル4階
- 賃料
- 260,000円
- 坪単価
- 12,500円
- 面積
- 20.80坪
- 最寄り駅
- 都営地下鉄大江戸線赤羽橋駅 徒歩2分
詳細を見る
-
品川・田町
アクシオール三田5階
- 賃料
- 1,217,540円
- 坪単価
- -
- 面積
- 71.62坪
- 最寄り駅
- 都営地下鉄三田線三田駅 徒歩4分
詳細を見る
-
新橋・虎ノ門・浜松町
住友不動産芝ビル3号館B1階
- 賃料
- 相談
- 坪単価
- 相談
- 面積
- 22.01坪
- 最寄り駅
- 都営地下鉄浅草線大門駅 徒歩5分
詳細を見る
-
飯田橋・九段
朝日観光ビル4階
- 賃料
- 18,910,000円
- 坪単価
- 200,000円
- 面積
- 94.55坪
- 最寄り駅
- JR総武線飯田橋駅 徒歩4分
詳細を見る
-
芝浦・お台場
安田8号ビル一棟貸
- 賃料
- 相談
- 坪単価
- 相談
- 面積
- 1,785.14坪
- 最寄り駅
- ゆりかもめ芝浦ふ頭駅 徒歩4分
詳細を見る
-
芝浦・お台場
第六協栄ビル6階
- 賃料
- 222,000円
- 坪単価
- 13,000円
- 面積
- 22.20坪
- 最寄り駅
- JR山手線田町駅 徒歩6分
詳細を見る
-
飯田橋・九段
アクサンビル9階
- 賃料
- 445,480円
- 坪単価
- 14,000円
- 面積
- 31.82坪
- 最寄り駅
- 東京メトロ東西線九段下駅 徒歩3分
詳細を見る
-
新橋・虎ノ門・浜松町
芝ファールビルディング3階
- 賃料
- 1,048,000円
- 坪単価
- 25,000円
- 面積
- 41.92坪
- 最寄り駅
- 都営地下鉄三田線芝公園駅 徒歩3分
詳細を見る
-
新橋・虎ノ門・浜松町
黒田ビル4階
- 賃料
- 520,960円
- 坪単価
- 16,000円
- 面積
- 32.56坪
- 最寄り駅
- JR山手線浜松町駅 徒歩5分
詳細を見る


