白金台ビル
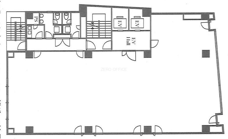
3階 85.77 坪- 部屋番号
- 154784
写真をクリックすると大きく表示されます。
賃貸条件
- 賃料
- 相談
- 共益費・管理費
- 込
- 月額合計
- 相談
- 坪単価(共益費込)
- 相談
- 入居日
- 2026/1/5
- 敷金(保証金)
- 10ヶ月
- 礼金
- 1ヶ月
- 更新料
- 1ヶ月
※賃料、共益費には別途消費税が必要になります。
- 参考 港区の平均坪単価
- 16,443円
お電話でのお問い合わせはこちらから 0120-33-2303 平日9:00~21:00 土日祝対応可能
- OAフロア
- 個別空調
- セキュリティシステム
- 24時間使用可能
- 新耐震基準
- エレベーター
- 定期借家権
物件概要
| 住所 | 東京都港区白金台3-19-6 |
|---|---|
| 最寄り駅 |
|
| 竣工 | 1987年01月 |
| 建物階数 | 地上7階 |
| 面積 |
85.77 坪(283.55㎡) |
| 建物構造 | SRC |
| 償却費 | - |
| 備考 | ゼロオフィスでは東京都千代田区・中央区・港区・新宿区・渋谷区・品川区・豊島区を中心に物件情報を毎日更新。オフィス探しのプロがお客様のご要望に合わせた最適なオフィスをご提案致します。東京エリアで賃貸事務所・賃貸オフィスをお探しの方はゼロオフィスまでお気軽にお問い合わせください。 |
| 定期借家 2026/1/5 | |
お電話でのお問い合わせはこちらから 0120-33-2303 平日9:00~21:00 土日祝対応可能


