三井ビル
8階 85.99坪- 部屋番号
- 149319
写真をクリックすると大きく表示されます。
賃貸条件
- 賃料
- 相談
- 共益費・管理費
- 込
- 月額合計
- 相談
- 坪単価(共益費込)
- 相談
- 入居日
- 2026/3/1
- 敷金(保証金)
- 12ヶ月
- 礼金
- -
- 更新料
- 0円
※賃料、共益費には別途消費税が必要になります。
- 参考 神田・御茶ノ水の平均坪単価
- 16,488円
お電話でのお問い合わせはこちらから 0120-33-2303 平日9:00~21:00 土日祝対応可能
- OAフロア
- 個別空調
- 24時間使用可能
- 光ファイバー
- 新耐震基準
- エレベーター
- 定期借家権
物件概要
| 住所 | 東京都千代田区内神田1-8-1 |
|---|---|
| 最寄り駅 |
|
| 竣工 | 1991年07月 |
| 建物階数 | 地上8階 地下1階 |
| 面積 |
85.99坪(284.27㎡) |
| 建物構造 | SRC |
| 償却費 | 0円 |
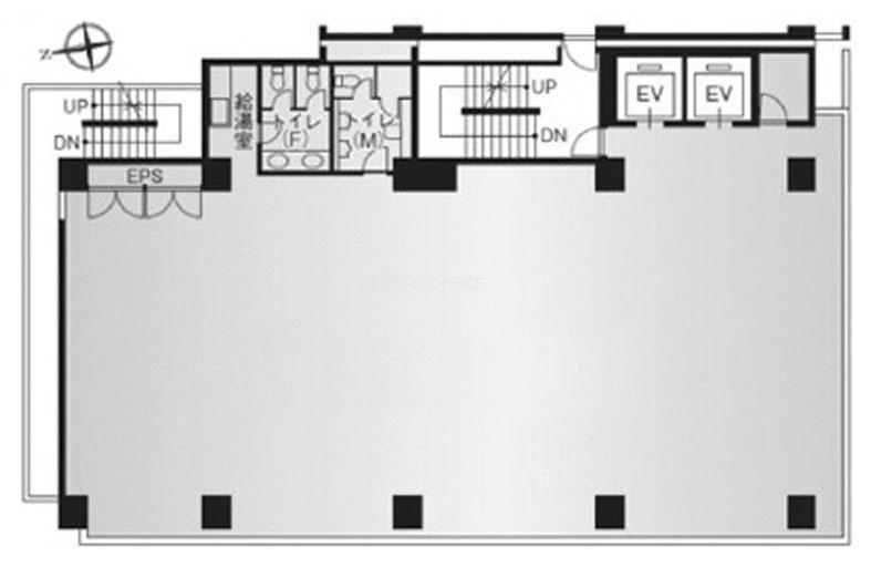
| 備考 | 三井ビルは内神田1丁目にあるオフィス物件です。最寄駅は大手町ですが神田方面へもアクセス可能。間取りはレイアウトしやすい長方形タイプ、エレベーターでダイレクトインの仕様です。神田と大手町の中間地点に立地しており、周辺で事務所をお探しであれば是非お問い合わせ下さい。 |
| 定期借家(3年) 2026/3/1 | |
お電話でのお問い合わせはこちらから 0120-33-2303 平日9:00~21:00 土日祝対応可能
同じエリアのおすすめ物件
-
神田・御茶ノ水
高正ビル5階
- 賃料
- 477,015円
- 坪単価
- 16,500円
- 面積
- 28.91坪
- 最寄り駅
- JR山手線神田駅 徒歩3分
詳細を見る
-
神田・御茶ノ水
VORT神田Ⅱ3階
- 賃料
- 520,800円
- 坪単価
- 20,000円
- 面積
- 26.04坪
- 最寄り駅
- JR山手線神田駅 徒歩5分
詳細を見る
-
神田・御茶ノ水
内山ビル7階
- 賃料
- 相談
- 坪単価
- 相談
- 面積
- 139.82坪
- 最寄り駅
- JR山手線神田駅 徒歩4分
詳細を見る
-
神田・御茶ノ水
倉内ビル1階
- 賃料
- 482,375円
- 坪単価
- 12,500円
- 面積
- 38.59坪
- 最寄り駅
- JR総武本線馬喰町駅 徒歩1分
詳細を見る
-
神田・御茶ノ水
GLORKS水道橋8階
- 賃料
- 1,117,250円
- 坪単価
- 25,000円
- 面積
- 44.69坪
- 最寄り駅
- JR中央線水道橋駅 徒歩4分
詳細を見る
-
神田・御茶ノ水
須田町ビル2階
- 賃料
- 相談
- 坪単価
- 相談
- 面積
- 30.89坪
- 最寄り駅
- 東京メトロ丸ノ内線淡路町駅 徒歩2分
詳細を見る
-
神田・御茶ノ水
いちご神保町ビル3階
- 賃料
- 相談
- 坪単価
- 相談
- 面積
- 42.50坪
- 最寄り駅
- 都営地下鉄新宿線神保町駅 徒歩1分
詳細を見る
-
神田・御茶ノ水
神田IKビル10階
- 賃料
- 相談
- 坪単価
- 相談
- 面積
- 31.08坪
- 最寄り駅
- JR山手線神田駅 徒歩1分
詳細を見る
-
神田・御茶ノ水
NBF小川町ビルディング2階
- 賃料
- 相談
- 坪単価
- 相談
- 面積
- 56.71坪
- 最寄り駅
- 都営地下鉄新宿線小川町駅 徒歩2分
詳細を見る
-
神田・御茶ノ水
ムラタヤビル5階
- 賃料
- 1,144,000円
- 坪単価
- 16,300円
- 面積
- 88坪
- 最寄り駅
- 東京メトロ銀座線末広町駅 徒歩5分
詳細を見る
-
神田・御茶ノ水
フォーラス神田5階
- 賃料
- 1,055,200円
- 坪単価
- 19,000円
- 面積
- 65.95坪
- 最寄り駅
- 東京メトロ銀座線神田駅 徒歩2分
詳細を見る
-
神田・御茶ノ水
冨士エレベータービル2階
- 賃料
- 865,900円
- 坪単価
- 17,000円
- 面積
- 61.85坪
- 最寄り駅
- JR山手線神田駅 徒歩2分
詳細を見る
閲覧履歴
-
六本木・麻布
六本木三幸ビル5階
- 賃料
- 880,000円
- 坪単価
- 17,426円
- 面積
- 50.50坪
- 最寄り駅
- 東京メトロ日比谷線六本木駅 徒歩5分
詳細を見る
-
丸の内・大手町・霞が関
大成大手町ビル7階
- 賃料
- 相談
- 坪単価
- 相談
- 面積
- 47.20坪
- 最寄り駅
- 東京メトロ東西線大手町駅 徒歩1分
詳細を見る
-
勝どき・月島・晴海
晴海アイランド トリトンスクエア オフィスタワーZ22階
- 賃料
- 相談
- 坪単価
- 相談
- 面積
- 163.94坪
- 最寄り駅
- 都営地下鉄大江戸線勝どき駅 徒歩4分
詳細を見る
-
新宿区
Arbor Yotsuya2階
- 賃料
- 相談
- 坪単価
- 相談
- 面積
- 106.84坪
- 最寄り駅
- 東京メトロ丸ノ内線四谷三丁目駅 徒歩5分
詳細を見る


