大阪ガス都市開発赤坂ビル
8階 81.47坪- 部屋番号
- 147724
写真をクリックすると大きく表示されます。
賃貸条件
- 賃料
- 相談
- 共益費・管理費
- 相談
- 月額合計
- 相談
- 坪単価(共益費込)
- 相談
- 入居日
- 即
- 敷金(保証金)
- 10ヶ月
- 礼金
- 0円
- 更新料
- -
※賃料、共益費には別途消費税が必要になります。
- 参考 赤坂・青山の平均坪単価
- 23,980円
お電話でのお問い合わせはこちらから 0120-33-2303 平日9:00~21:00 土日祝対応可能
- OAフロア
- 個別空調
- 24時間使用可能
- 光ファイバー
- エレベーター
- 定期借家権
物件概要
| 住所 | 東京都港区赤坂2-10-9 | |
|---|---|---|
| 最寄り駅 |
|
|
| 竣工 | 1978年10月 | |
| 建物階数 | 地上9階 | |
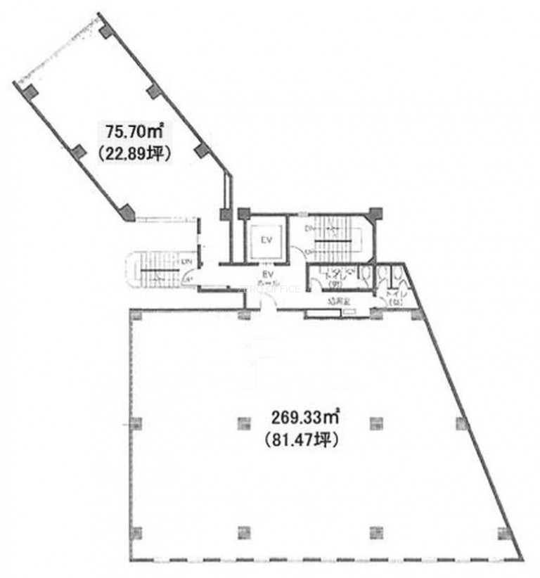
| 面積 |
81.47坪(269.33㎡) |
|
| 建物構造 | SRC | |
| 償却費 | 0円 | |
| 備考 | ゼロオフィスでは東京都千代田区・中央区・港区・新宿区・渋谷区・品川区・豊島区を中心に物件情報を毎日更新。オフィス探しのプロがお客様のご要望に合わせた最適なオフィスをご提案致します。東京エリアで賃貸事務所・賃貸オフィスをお探しの方はゼロオフィスまでお気軽にお問い合わせください。 | |
|
||
お電話でのお問い合わせはこちらから 0120-33-2303 平日9:00~21:00 土日祝対応可能
他フロアの空き状況
| お気入り | 階数 | 面積 | 賃料(共益費込) | 坪単価(共益費込) | 敷金(保証金) | 礼金 | 間取り | 詳細 |
|---|---|---|---|---|---|---|---|---|
|
お気に入り登録 お気に入り登録済 |
9階 | 82.07坪 (271.32㎡) | 相談 | 相談 | 10ヶ月 | 0円 |
|
詳細を見る |
同じエリアのおすすめ物件
-
赤坂・青山
麻布台日ノ樹ビル4階
- 賃料
- 356,000円
- 坪単価
- 16,000円
- 面積
- 22.25坪
- 最寄り駅
- 東京メトロ日比谷線六本木駅 徒歩10分
詳細を見る
-
赤坂・青山
VORT南青山maxim9階
- 賃料
- 相談
- 坪単価
- 相談
- 面積
- 92.68坪
- 最寄り駅
- 東京メトロ銀座線表参道駅 徒歩1分
詳細を見る
-
赤坂・青山
たつむら青山マンション2階
- 賃料
- 2,700,000円
- 坪単価
- -
- 面積
- 112.85坪
- 最寄り駅
- 東京メトロ銀座線表参道駅 徒歩3分
詳細を見る
-
赤坂・青山
VORT南青山maxim9階
- 賃料
- 3,892,560円
- 坪単価
- 42,000円
- 面積
- 92.68坪
- 最寄り駅
- 東京メトロ銀座線表参道駅 徒歩1分
詳細を見る
-
赤坂・青山
VORT南青山maxim7階
- 賃料
- 3,521,460円
- 坪単価
- 38,000円
- 面積
- 92.67坪
- 最寄り駅
- 東京メトロ銀座線表参道駅 徒歩1分
詳細を見る
-
赤坂・青山
VORT南青山maxim6階
- 賃料
- 3,521,840円
- 坪単価
- 38,000円
- 面積
- 92.68坪
- 最寄り駅
- 東京メトロ銀座線表参道駅 徒歩1分
詳細を見る
-
赤坂・青山
KD南青山ビル8階
- 賃料
- 相談
- 坪単価
- 相談
- 面積
- 91.69坪
- 最寄り駅
- 東京メトロ銀座線外苑前駅 徒歩6分
詳細を見る
-
赤坂・青山
第2九曜ビル2階
- 賃料
- 1,964,600円
- 坪単価
- 25,600円
- 面積
- 89.30坪
- 最寄り駅
- 東京メトロ銀座線表参道駅 徒歩3分
詳細を見る
-
赤坂・青山
The Jewels of Aoyama4階
- 賃料
- 相談
- 坪単価
- 相談
- 面積
- 88.15坪
- 最寄り駅
- 東京メトロ千代田線表参道駅 徒歩3分
詳細を見る
-
赤坂・青山
ラ・ベリテAKASAKAビル6階
- 賃料
- 相談
- 坪単価
- 相談
- 面積
- 69.23坪
- 最寄り駅
- 東京メトロ銀座線赤坂見附駅 徒歩3分
詳細を見る
-
赤坂・青山
リビエラ南青山1階
- 賃料
- 2,019,600円
- 坪単価
- 30,000円
- 面積
- 67.32坪
- 最寄り駅
- 東京メトロ銀座線外苑前駅 徒歩4分
詳細を見る
-
赤坂・青山
青山SGKビル2階
- 賃料
- 950,895円
- 坪単価
- 19,000円
- 面積
- 57.63坪
- 最寄り駅
- 東京メトロ銀座線青山一丁目駅 徒歩3分
詳細を見る


