心斎橋コラムナービル
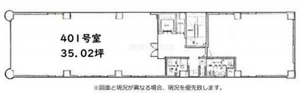
4階 35.02坪- 部屋番号
- 30976
写真をクリックすると大きく表示されます。
賃貸条件
- 賃料
- 385,220円
- 共益費・管理費
- 賃料に含む
- 月額合計
- 385,220円
- 坪単価(共益費込)
- 11,000円
- 入居日
- 即
- 敷金(保証金)
- 6ヶ月
- 礼金
- -
- 更新料
- -
※賃料、共益費には別途消費税が必要になります。
- 参考 心斎橋の平均坪単価
- 11,400円
お電話でのお問い合わせはこちらから 0120-33-2303 平日9:00~21:00 土日祝対応可能
- 個別空調
- 24時間使用可能
- 光ファイバー
- 新耐震基準
- エレベーター
- 坪単価1万以下
物件概要
| 住所 | 大阪府大阪市中央区南船場4-11-16 |
|---|---|
| 最寄り駅 |
|
| 竣工 | 1987年 |
| 建物階数 | 地上9階 |
| 面積 |
35.02坪(115.77㎡) |
| 建物構造 | RC |
| 償却費 | - |
| 備考 | ゼロオフィスでは大阪・神戸市内を中心に物件情報を毎日更新。オフィス探しのプロがお客様のご要望に合わせた最適なオフィスをご提案致します。賃貸事務所・賃貸オフィスをお探しの方はゼロオフィスまでお気軽にお問い合わせください。 |
お電話でのお問い合わせはこちらから 0120-33-2303 平日9:00~21:00 土日祝対応可能
他フロアの空き状況
| お気入り | 階数 | 面積 | 賃料(共益費込) | 坪単価(共益費込) | 敷金(保証金) | 礼金 | 間取り | 詳細 |
|---|---|---|---|---|---|---|---|---|
|
お気に入り登録 お気に入り登録済 |
4階 | 18.54坪 (61.29㎡) | 303,940円 | 11,000円 | 6ヶ月 | - |
|
詳細を見る |
同じエリアのおすすめ物件
-
心斎橋
SRビル長堀7階
- 賃料
- 相談
- 坪単価
- 相談
- 面積
- 160.65坪
- 最寄り駅
- 大阪メトロ堺筋線長堀橋駅 徒歩1分
詳細を見る
-
心斎橋
プライムスクエア心斎橋ビル9階
- 賃料
- 相談
- 坪単価
- 相談
- 面積
- 27.02坪
- 最寄り駅
- 大阪メトロ御堂筋線心斎橋駅 徒歩4分
詳細を見る
-
心斎橋
心斎橋MSビル7階
- 賃料
- 170,300円
- 坪単価
- 11,996円
- 面積
- 17.03坪
- 最寄り駅
- 大阪メトロ御堂筋線心斎橋駅 徒歩3分
詳細を見る
-
心斎橋
心斎橋コラムナービル4階
- 賃料
- 203,940円
- 坪単価
- 11,000円
- 面積
- 18.54坪
- 最寄り駅
- 大阪メトロ御堂筋線心斎橋駅 徒歩3分
詳細を見る
-
心斎橋
エスプライム心斎橋4階
- 賃料
- 156,240円
- 坪単価
- 12,000円
- 面積
- 13.02坪
- 最寄り駅
- 大阪メトロ御堂筋線心斎橋駅 徒歩3分
詳細を見る
-
心斎橋
徳島ビル6階
- 賃料
- 相談
- 坪単価
- 相談
- 面積
- 15.84坪
- 最寄り駅
- 大阪メトロ御堂筋線心斎橋駅 徒歩4分
詳細を見る
-
心斎橋
南船場心斎橋ビル3階
- 賃料
- 108,400円
- 坪単価
- 11,000円
- 面積
- 13.48坪
- 最寄り駅
- 大阪メトロ御堂筋線心斎橋駅 徒歩3分
詳細を見る
-
心斎橋
グラスコートビル4階
- 賃料
- 486,818円
- 坪単価
- 15,603円
- 面積
- 31.20坪
- 最寄り駅
- 大阪メトロ長堀鶴見緑地線松屋町駅 徒歩4分
詳細を見る
-
心斎橋
THE PEAK SHINSAIBASHI5階
- 賃料
- 相談
- 坪単価
- 相談
- 面積
- 111.97坪
- 最寄り駅
- 大阪メトロ御堂筋線心斎橋駅 徒歩3分
詳細を見る
-
心斎橋
心斎橋サムティビル3階
- 賃料
- 925,730円
- 坪単価
- 13,000円
- 面積
- 71.21坪
- 最寄り駅
- 大阪メトロ御堂筋線心斎橋駅 徒歩3分
詳細を見る
-
心斎橋
南船場M21ビル7階
- 賃料
- 相談
- 坪単価
- 相談
- 面積
- 46.14坪
- 最寄り駅
- 大阪メトロ長堀鶴見緑地線長堀橋駅 徒歩2分
詳細を見る
-
心斎橋
ENT長堀ビル9階
- 賃料
- 240,000円
- 坪単価
- 11,204円
- 面積
- 24.10坪
- 最寄り駅
- 大阪メトロ堺筋線長堀橋駅 徒歩1分
詳細を見る


