四ツ橋スタービル
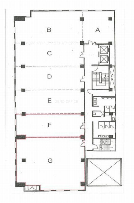
6階 45.25坪- 部屋番号
- 30896
写真をクリックすると大きく表示されます。
賃貸条件
- 賃料
- 452,500円
- 共益費・管理費
- 135,750円
- 月額合計
- 588,250円
- 坪単価(共益費込)
- 13,000円
- 入居日
- 2026/5
- 敷金(保証金)
- 12ヶ月
- 礼金
- -
- 更新料
- -
※賃料、共益費には別途消費税が必要になります。
- 参考 四ツ橋・堀江の平均坪単価
- 10,975円
お電話でのお問い合わせはこちらから 0120-33-2303 平日9:00~21:00 土日祝対応可能
- 個別空調
- 24時間使用可能
- 光ファイバー
- 駐車場有
- エレベーター
- 大型・高層
- ランドマーク
- 定期借家権
物件概要
| 住所 | 大阪府大阪市西区南堀江1-12-19 |
|---|---|
| 最寄り駅 |
|
| 竣工 | 1976年 |
| 建物階数 | 地上9階 |
| 面積 |
45.25坪(149.59㎡) |
| 建物構造 | 鉄骨造 |
| 償却費 | 満3年以内 30% 満3年超~満5年以内 20% 満5年超0% |
| 備考 | 四ツ橋スタービルは大阪メトロ四つ橋線の四ツ橋駅から徒歩3分の場所に位置している地上9階建ての賃貸オフィスビルです。四ツ橋、堀江エリアで賃貸オフィス・貸事務所をお探しのお客様、条件のご相談や内覧のご要望などございましたらお気軽にゼロオフィスまでお問合せ下さいませ。 |
| 定借5年 2026/5 | |
お電話でのお問い合わせはこちらから 0120-33-2303 平日9:00~21:00 土日祝対応可能
他フロアの空き状況
| お気入り | 階数 | 面積 | 賃料(共益費込) | 坪単価(共益費込) | 敷金(保証金) | 礼金 | 間取り | 詳細 |
|---|---|---|---|---|---|---|---|---|
|
お気に入り登録 お気に入り登録済 |
6階 | 20.29坪 (67.08㎡) | 263,770円 | 13,000円 | 12ヶ月 | - |
|
詳細を見る |
同じエリアのおすすめ物件
-
四ツ橋・堀江
四ツ橋養田ビル8階
- 賃料
- 154,000円
- 坪単価
- 9,000円
- 面積
- 22坪
- 最寄り駅
- 大阪メトロ四つ橋線四ツ橋駅 徒歩1分
詳細を見る
-
四ツ橋・堀江
四ツ橋養田ビル7階
- 賃料
- 133,000円
- 坪単価
- 9,000円
- 面積
- 19坪
- 最寄り駅
- 大阪メトロ四つ橋線四ツ橋駅 徒歩1分
詳細を見る
-
四ツ橋・堀江
山五ビル5階
- 賃料
- 86,670円
- 坪単価
- 11,000円
- 面積
- 9.63坪
- 最寄り駅
- 大阪メトロ四つ橋線四ツ橋駅 徒歩5分
詳細を見る
-
四ツ橋・堀江
アステリオ北堀江4階
- 賃料
- 相談
- 坪単価
- 相談
- 面積
- 31.32坪
- 最寄り駅
- 大阪メトロ四つ橋線四ツ橋駅 徒歩1分
詳細を見る
-
四ツ橋・堀江
長堀佐野ビル2階
- 賃料
- 189,200円
- 坪単価
- 11,000円
- 面積
- 17.20坪
- 最寄り駅
- 大阪メトロ長堀鶴見緑地線西大橋駅 徒歩1分
詳細を見る
-
四ツ橋・堀江
RE-0089階
- 賃料
- 200,000円
- 坪単価
- 10,500円
- 面積
- 20坪
- 最寄り駅
- 大阪メトロ四つ橋線四ツ橋駅 徒歩5分
詳細を見る
-
四ツ橋・堀江
北堀江ゲイトビル8階
- 賃料
- 193,800円
- 坪単価
- 10,000円
- 面積
- 19.38坪
- 最寄り駅
- 大阪メトロ長堀鶴見緑地線西大橋駅 徒歩1分
詳細を見る
-
四ツ橋・堀江
四ツ橋中央ビル3階
- 賃料
- 150,000円
- 坪単価
- 17,526円
- 面積
- 9.70坪
- 最寄り駅
- 大阪メトロ四つ橋線四ツ橋駅 徒歩2分
詳細を見る
-
四ツ橋・堀江
長堀佐野ビル9階
- 賃料
- 284,100円
- 坪単価
- 9,534円
- 面積
- 29.80坪
- 最寄り駅
- 大阪メトロ長堀鶴見緑地線西大橋駅 徒歩1分
詳細を見る
-
四ツ橋・堀江
米澤北堀江ビルⅡ2階
- 賃料
- 143,000円
- 坪単価
- 10,557円
- 面積
- 15.44坪
- 最寄り駅
- 大阪メトロ長堀鶴見緑地線西大橋駅 徒歩2分
詳細を見る
-
四ツ橋・堀江
サンライズビル6階
- 賃料
- 400,000円
- 坪単価
- 11,758円
- 面積
- 34.02坪
- 最寄り駅
- 大阪メトロ長堀鶴見緑地線西大橋駅 徒歩4分
詳細を見る
-
四ツ橋・堀江
北堀江ワタリビル3階
- 賃料
- 218,260円
- 坪単価
- 9,000円
- 面積
- 31.18坪
- 最寄り駅
- 大阪メトロ四つ橋線四ツ橋駅 徒歩1分
詳細を見る


