- トップページ
- 烏丸KT第2ビル 1階
烏丸KT第2ビル
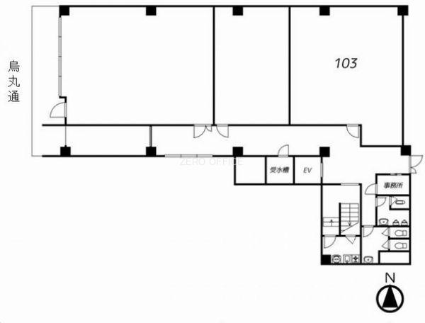
1階 22.75坪- 部屋番号
- 30834
写真をクリックすると大きく表示されます。
賃貸条件
- 賃料
- 295,750円
- 共益費・管理費
- 込
- 月額合計
- 295,750円
- 坪単価(共益費込)
- 13,000円
- 入居日
- 即
- 敷金(保証金)
- 1,710,500円
- 礼金
- -
- 更新料
- -
※賃料、共益費には別途消費税が必要になります。
お電話でのお問い合わせはこちらから 0120-33-2303 平日9:00~21:00 土日祝対応可能
- 1階限定
物件概要
| 住所 | 京都府京都市下京区五条烏丸町407-2 |
|---|---|
| 最寄り駅 |
|
| 竣工 | 1971年01月 |
| 建物階数 | 地上6階 |
| 面積 |
22.75坪(75.21㎡) |
| 建物構造 | 鉄骨造 |
| 償却費 | - |
| 備考 |
お電話でのお問い合わせはこちらから 0120-33-2303 平日9:00~21:00 土日祝対応可能


