第10松屋ビル
6階 14.44坪- 部屋番号
- 30608
写真をクリックすると大きく表示されます。
賃貸条件
- 賃料
- 108,300円
- 共益費・管理費
- 28,880円
- 月額合計
- 137,180円
- 坪単価(共益費込)
- 9,500円
- 入居日
- 即
- 敷金(保証金)
- 220,000円
- 礼金
- 440,000円
- 更新料
- -
※賃料、共益費には別途消費税が必要になります。
- 参考 谷町の平均坪単価
- 7,187円
お電話でのお問い合わせはこちらから 0120-33-2303 平日9:00~21:00 土日祝対応可能
- 個別空調
- セキュリティシステム
- 24時間使用可能
- 光ファイバー
- 新耐震基準
- 大通り沿い
- 駐車場有
- エレベーター
- 坪単価1万以下
物件概要
| 住所 | 大阪府大阪市中央区内本町2-1-19 |
|---|---|
| 最寄り駅 |
|
| 竣工 | 1984年09月 |
| 建物階数 | 地上12階 |
| 面積 |
14.44坪(47.74㎡) |
| 建物構造 | SRC |
| 償却費 | - |
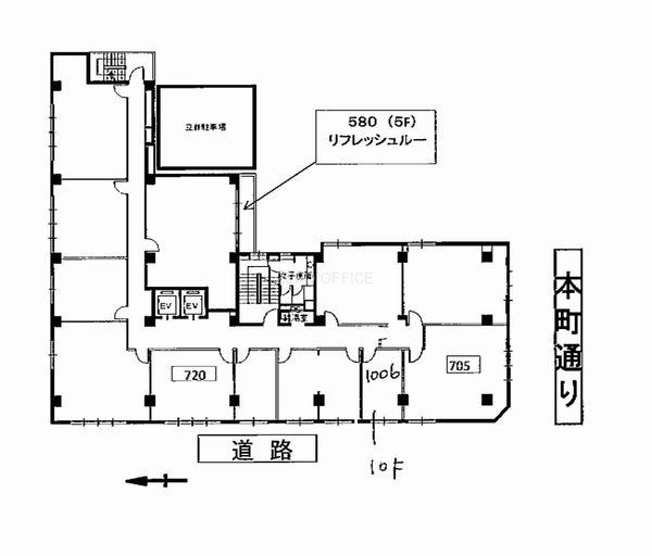
| 備考 | 第10松屋ビルは大阪メトロ堺筋線の堺筋本町駅から徒歩3分の場所に位置している地上10階建ての賃貸オフィスビルです。本町エリアで賃貸オフィス・貸事務所をお探しのお客様、条件のご相談や内覧のご要望などございましたらお気軽にゼロオフィスまでお問合せ下さいませ。 |
お電話でのお問い合わせはこちらから 0120-33-2303 平日9:00~21:00 土日祝対応可能
他フロアの空き状況
| お気入り | 階数 | 面積 | 賃料(共益費込) | 坪単価(共益費込) | 敷金(保証金) | 礼金 | 間取り | 詳細 |
|---|---|---|---|---|---|---|---|---|
|
お気に入り登録 お気に入り登録済 |
10階 | 5.69坪 (18.81㎡) | 54,055円 | 9,500円 | 100,000円 | 180,000円 |
|
詳細を見る |
|
お気に入り登録 お気に入り登録済 |
11階 | 11.65坪 (38.51㎡) | 110,675円 | 9,500円 | 180,000円 | 350,000円 |
|
詳細を見る |
同じエリアのおすすめ物件
-
谷町
フシマン三陽ビル7階
- 賃料
- 134,365円
- 坪単価
- 8,007円
- 面積
- 26.85坪
- 最寄り駅
- 大阪メトロ谷町線谷町四丁目駅 徒歩7分
詳細を見る
-
谷町
サンユー天満橋ビル8階
- 賃料
- 302,290円
- 坪単価
- 9,514円
- 面積
- 42.57坪
- 最寄り駅
- 大阪メトロ谷町線天満橋駅 徒歩1分
詳細を見る
-
谷町
堺筋本町千寿ビル6階
- 賃料
- 395,200円
- 坪単価
- 7,599円
- 面積
- 52.01坪
- 最寄り駅
- 大阪メトロ谷町線谷町四丁目駅 徒歩8分
詳細を見る
-
谷町
ピジョンビル5階
- 賃料
- 221,900円
- 坪単価
- 10,000円
- 面積
- 22.19坪
- 最寄り駅
- 大阪メトロ谷町線谷町四丁目駅 徒歩5分
詳細を見る
-
谷町
ピジョンビル2階
- 賃料
- 126,800円
- 坪単価
- 10,000円
- 面積
- 12.68坪
- 最寄り駅
- 大阪メトロ谷町線谷町四丁目駅 徒歩5分
詳細を見る
-
谷町
FLAGS(フラッグス)ビル6階
- 賃料
- 307,440円
- 坪単価
- 10,000円
- 面積
- 43.92坪
- 最寄り駅
- 大阪メトロ谷町線谷町四丁目駅 徒歩2分
詳細を見る
-
谷町
TDビル2階
- 賃料
- 相談
- 坪単価
- 相談
- 面積
- 9.50坪
- 最寄り駅
- 大阪メトロ谷町線谷町四丁目駅 徒歩3分
詳細を見る
-
谷町
第18松屋ビル9階
- 賃料
- 98,770円
- 坪単価
- 14,017円
- 面積
- 8.29坪
- 最寄り駅
- 大阪メトロ谷町線谷町六丁目駅 徒歩3分
詳細を見る
-
谷町
北平谷町ビル6階
- 賃料
- 95,850円
- 坪単価
- 9,000円
- 面積
- 10.65坪
- 最寄り駅
- 大阪メトロ谷町線谷町九丁目駅 徒歩2分
詳細を見る
-
谷町
リンクハウス南新町ビル4階
- 賃料
- 176,000円
- 坪単価
- 9,962円
- 面積
- 20.80坪
- 最寄り駅
- 大阪メトロ谷町線谷町四丁目駅 徒歩6分
詳細を見る
-
谷町
谷町大治ビル5階
- 賃料
- 550,000円
- 坪単価
- 14,375円
- 面積
- 41.74坪
- 最寄り駅
- 大阪メトロ長堀鶴見緑地線谷町六丁目駅 徒歩1分
詳細を見る
-
谷町
大阪谷町ビル8階
- 賃料
- 200,000円
- 坪単価
- 13,464円
- 面積
- 16.34坪
- 最寄り駅
- 大阪メトロ谷町線谷町六丁目駅 徒歩3分
詳細を見る


