本町サザンビル
9階 14.57坪- 部屋番号
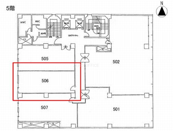
- 30395
写真をクリックすると大きく表示されます。
賃貸条件
- 賃料
- 145,700円
- 共益費・管理費
- 29,140円
- 月額合計
- 174,840円
- 坪単価(共益費込)
- 12,000円
- 入居日
- 即
- 敷金(保証金)
- 1ヶ月
- 礼金
- 2ヶ月
- 更新料
- -
※賃料、共益費には別途消費税が必要になります。
- 参考 本町の平均坪単価
- 11,260円
お電話でのお問い合わせはこちらから 0120-33-2303 平日9:00~21:00 土日祝対応可能
- 個別空調
- 24時間使用可能
- 光ファイバー
- 大通り沿い
- 保証金格安
- エレベーター
- 初期費用重視
- 坪単価1万以下
物件概要
| 住所 | 大阪府大阪市中央区南本町2-1-1 |
|---|---|
| 最寄り駅 |
|
| 竣工 | 1968年 |
| 建物階数 | 地上10階 地下2階 |
| 面積 |
14.57坪(48.16㎡) |
| 建物構造 | RC |
| 償却費 | - |
| 備考 | 本町サザンビルは大阪メトロ堺筋線の堺筋本町駅から徒歩1分の場所に位置している地上10階建ての賃貸オフィスビルです。本町エリアで賃貸オフィス・貸事務所をお探しのお客様、条件のご相談や内覧のご要望などございましたらお気軽にゼロオフィスまでお問合せ下さいませ。 |
お電話でのお問い合わせはこちらから 0120-33-2303 平日9:00~21:00 土日祝対応可能
他フロアの空き状況
| お気入り | 階数 | 面積 | 賃料(共益費込) | 坪単価(共益費込) | 敷金(保証金) | 礼金 | 間取り | 詳細 |
|---|---|---|---|---|---|---|---|---|
|
お気に入り登録 お気に入り登録済 |
9階 | 16.27坪 (53.79㎡) | 195,240円 | 12,000円 | 1ヶ月 | 2ヶ月 |
|
詳細を見る |
同じエリアのおすすめ物件
-
本町
フェニックス内本町ビル5階
- 賃料
- 相談
- 坪単価
- 相談
- 面積
- 70.67坪
- 最寄り駅
- 大阪メトロ谷町線谷町四丁目駅 徒歩6分
詳細を見る
-
本町
フェニックス内本町ビル7階
- 賃料
- 781,880円
- 坪単価
- 14,000円
- 面積
- 71.08坪
- 最寄り駅
- 大阪メトロ谷町線谷町四丁目駅 徒歩6分
詳細を見る
-
本町
大阪JPビル6階
- 賃料
- 1,215,760円
- 坪単価
- 13,000円
- 面積
- 93.52坪
- 最寄り駅
- 大阪メトロ堺筋線堺筋本町駅 徒歩7分
詳細を見る
-
本町
船場オーセンビル4階
- 賃料
- 843,840円
- 坪単価
- 19,000円
- 面積
- 52.74坪
- 最寄り駅
- 大阪メトロ御堂筋線本町駅 徒歩1分
詳細を見る
-
本町
第一住建南久宝寺町ビル8階
- 賃料
- 387,000円
- 坪単価
- 12,000円
- 面積
- 43坪
- 最寄り駅
- 大阪メトロ堺筋線堺筋本町駅 徒歩6分
詳細を見る
-
本町
大阪JPビル5階
- 賃料
- 1,954,200円
- 坪単価
- 13,000円
- 面積
- 150.32坪
- 最寄り駅
- 大阪メトロ堺筋線堺筋本町駅 徒歩7分
詳細を見る
-
本町
南本町ビル4階
- 賃料
- 456,240円
- 坪単価
- 12,000円
- 面積
- 38.02坪
- 最寄り駅
- 大阪メトロ堺筋線堺筋本町駅 徒歩1分
詳細を見る
-
本町
西村ビル7階
- 賃料
- 107,804円
- 坪単価
- 11,044円
- 面積
- 14.29坪
- 最寄り駅
- 大阪メトロ堺筋線堺筋本町駅 徒歩3分
詳細を見る
-
本町
西村ビル4階
- 賃料
- 177,355円
- 坪単価
- 11,047円
- 面積
- 23.50坪
- 最寄り駅
- 大阪メトロ堺筋線堺筋本町駅 徒歩3分
詳細を見る
-
本町
ネオフィス堺筋本町ビル9階
- 賃料
- 83,600円
- 坪単価
- 10,500円
- 面積
- 8.80坪
- 最寄り駅
- 大阪メトロ堺筋線堺筋本町駅 徒歩3分
詳細を見る
-
本町
船場エクローズビル3階
- 賃料
- 340,000円
- 坪単価
- 9,000円
- 面積
- 40坪
- 最寄り駅
- 大阪メトロ堺筋線堺筋本町駅 徒歩4分
詳細を見る
-
本町
日宝東本町ビルB1階
- 賃料
- 61,000円
- 坪単価
- 8,083円
- 面積
- 9.65坪
- 最寄り駅
- 大阪メトロ堺筋線堺筋本町駅 徒歩8分
詳細を見る


