マルイト難波ビル
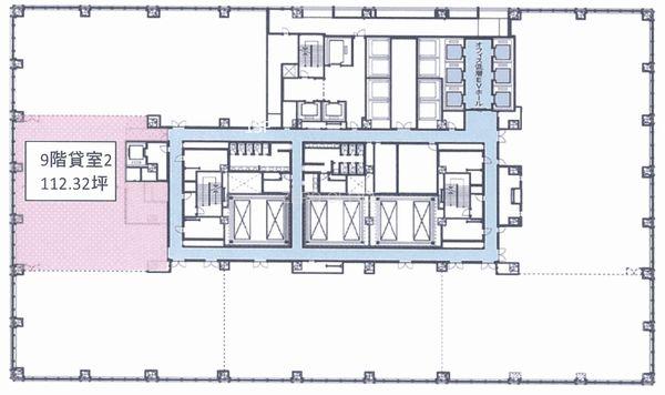
9階 112.32坪- 部屋番号
- 30282
写真をクリックすると大きく表示されます。
賃貸条件
- 賃料
- 相談
- 共益費・管理費
- 相談
- 月額合計
- 相談
- 坪単価(共益費込)
- 相談
- 入居日
- 2026/1
- 敷金(保証金)
- 相談
- 礼金
- -
- 更新料
- -
※賃料、共益費には別途消費税が必要になります。
- 参考 大阪市浪速区の平均坪単価
- 11,691円
お電話でのお問い合わせはこちらから 0120-33-2303 平日9:00~21:00 土日祝対応可能
- OAフロア
- 個別空調
- セキュリティシステム
- 24時間使用可能
- 光ファイバー
- 新耐震基準
- 新築・築浅
- 大通り沿い
- 駐車場有
- エレベーター
- 大型・高層
- ランドマーク
物件概要
| 住所 | 大阪府大阪市浪速区湊町1-2-3 |
|---|---|
| 最寄り駅 |
|
| 竣工 | 2009年07月 |
| 建物階数 | 地上31階 地下1階 |
| 面積 |
112.32坪(371.32㎡) |
| 建物構造 | SRC |
| 償却費 | - |
| 備考 | マルイト難波ビルは大阪メトロ四ツ橋線のなんば駅から徒歩1分の場所に位置している地上31階建ての賃貸オフィスビルです。なんばエリアで賃貸オフィス・貸事務所をお探しのお客様、条件のご相談や内覧のご要望などございましたらお気軽にゼロオフィスまでお問合せ下さいませ。 |
| 2026/1 | |
お電話でのお問い合わせはこちらから 0120-33-2303 平日9:00~21:00 土日祝対応可能


