新瓦町ビル
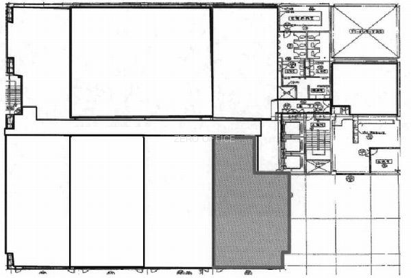
5階 287.09坪- 部屋番号
- 30239
写真をクリックすると大きく表示されます。
賃貸条件
- 賃料
- 相談
- 共益費・管理費
- 相談
- 月額合計
- 相談
- 坪単価(共益費込)
- 相談
- 入居日
- 即
- 敷金(保証金)
- 12ヶ月
- 礼金
- -
- 更新料
- -
※賃料、共益費には別途消費税が必要になります。
- 参考 本町の平均坪単価
- 11,260円
お電話でのお問い合わせはこちらから 0120-33-2303 平日9:00~21:00 土日祝対応可能
- OAフロア
- 個別空調
- 24時間使用可能
- 光ファイバー
- 大通り沿い
- デザイナーズ
- 駐車場有
- リノベーション
- エレベーター
- 大型・高層
- ランドマーク
物件概要
| 住所 | 大阪府大阪市中央区瓦町2-4-7 |
|---|---|
| 最寄り駅 |
|
| 竣工 | 1979年 |
| 建物階数 | 地上8階 |
| 面積 |
287.09坪(949.08㎡) |
| 建物構造 | SRC |
| 償却費 | - |
| 備考 | 新瓦町ビルは2009年に竣工のオフィスビル。地上8階建、エレベーターは3基設置されております。リノベーションが施されており来訪者の方に好印象を持たれる事間違いなしです。機械警備・OAフロア・個別空調・機械式駐車場・男女別トイレなど設備も十分に備わっております。ゼロオフィスでは大阪・神戸市内を中心に物件情報を毎日更新。オフィス探しのプロがお客様のご要望に合わせた最適なオフィスをご提案致します。賃貸事務所・賃貸オフィスをお探しの方はゼロオフィスまでお気軽にお問い合わせください。 |
お電話でのお問い合わせはこちらから 0120-33-2303 平日9:00~21:00 土日祝対応可能
他フロアの空き状況
| お気入り | 階数 | 面積 | 賃料(共益費込) | 坪単価(共益費込) | 敷金(保証金) | 礼金 | 間取り | 詳細 |
|---|---|---|---|---|---|---|---|---|
|
お気に入り登録 お気に入り登録済 |
5階 | 31.61坪 (104.50㎡) | 相談 | 相談 | 12ヶ月 | - | - | 詳細を見る |
|
お気に入り登録 お気に入り登録済 |
3階 | 287.09坪 (949.09㎡) | 相談 | 相談 | 12ヶ月 | - | - | 詳細を見る |
同じエリアのおすすめ物件
-
本町
フェニックス内本町ビル5階
- 賃料
- 相談
- 坪単価
- 相談
- 面積
- 70.67坪
- 最寄り駅
- 大阪メトロ谷町線谷町四丁目駅 徒歩6分
詳細を見る
-
本町
フェニックス内本町ビル7階
- 賃料
- 781,880円
- 坪単価
- 14,000円
- 面積
- 71.08坪
- 最寄り駅
- 大阪メトロ谷町線谷町四丁目駅 徒歩6分
詳細を見る
-
本町
プロパレス安土町ビル4階
- 賃料
- 186,340円
- 坪単価
- 11,000円
- 面積
- 16.94坪
- 最寄り駅
- 大阪メトロ堺筋線堺筋本町駅 徒歩4分
詳細を見る
-
本町
NTPR堺筋本町ビル11階
- 賃料
- 相談
- 坪単価
- 相談
- 面積
- 26.80坪
- 最寄り駅
- 大阪メトロ中央線堺筋本町駅 徒歩2分
詳細を見る
-
本町
住宅金融支援機構・矢野ビル(地下1階)B1階
- 賃料
- 相談
- 坪単価
- 相談
- 面積
- 30.36坪
- 最寄り駅
- 大阪メトロ御堂筋線本町駅 徒歩1分
詳細を見る
-
本町
堺筋トラストビル6階
- 賃料
- 312,970円
- 坪単価
- 9,000円
- 面積
- 44.71坪
- 最寄り駅
- 大阪メトロ堺筋線堺筋本町駅 徒歩6分
詳細を見る
-
本町
船場グランド第2ビル7階
- 賃料
- 231,000円
- 坪単価
- 10,000円
- 面積
- 33坪
- 最寄り駅
- 大阪メトロ御堂筋線本町駅 徒歩5分
詳細を見る
-
本町
イヨビル4階
- 賃料
- 相談
- 坪単価
- 相談
- 面積
- 130.60坪
- 最寄り駅
- 大阪メトロ御堂筋線本町駅 徒歩1分
詳細を見る
-
本町
瓦町スクエアビル4階
- 賃料
- 相談
- 坪単価
- 相談
- 面積
- 102.61坪
- 最寄り駅
- 大阪メトロ御堂筋線本町駅 徒歩6分
詳細を見る
-
本町
船場グランド第2ビル2階
- 賃料
- 350,000円
- 坪単価
- 10,000円
- 面積
- 50坪
- 最寄り駅
- 大阪メトロ御堂筋線本町駅 徒歩5分
詳細を見る
-
本町
イヨビル9階
- 賃料
- 相談
- 坪単価
- 相談
- 面積
- 175.95坪
- 最寄り駅
- 大阪メトロ御堂筋線本町駅 徒歩1分
詳細を見る
-
本町
(仮称)本町4丁目プロジェクト18階
- 賃料
- 相談
- 坪単価
- 相談
- 面積
- 279.18坪
- 最寄り駅
- 大阪メトロ御堂筋線本町駅 徒歩1分
詳細を見る


