堂島TSSビル
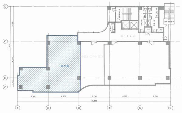
3階 36.52坪- 部屋番号
- 506
写真をクリックすると大きく表示されます。
賃貸条件
- 賃料
- 相談
- 共益費・管理費
- 相談
- 月額合計
- 相談
- 坪単価(共益費込)
- 相談
- 入居日
- 2026/4
- 敷金(保証金)
- 相談
- 礼金
- -
- 更新料
- -
※賃料、共益費には別途消費税が必要になります。
- 参考 西梅田の平均坪単価
- 14,750円
お電話でのお問い合わせはこちらから 0120-33-2303 平日9:00~21:00 土日祝対応可能
- 個別空調
- セキュリティシステム
- 24時間使用可能
- 光ファイバー
- 新耐震基準
- 1階限定
- エレベーター
物件概要
| 住所 | 大阪府大阪市北区曾根崎新地2-5-3 |
|---|---|
| 最寄り駅 |
|
| 竣工 | 1990年10月 |
| 建物階数 | 地上7階 地下1階 |
| 面積 |
36.52坪(120.73㎡) |
| 建物構造 | RC |
| 償却費 | 10% |
| 備考 | 堂島TSSビルは曾根崎新地2丁目にあるオフィスビルです。人気の梅田エリアに位置し、四つ橋線西梅田駅から徒歩2分の距離で梅田駅までも徒歩圏内、ガラス張りの外観と広いエントランスが印象的な物件です。光ファイバー、24時間使用可能、セキュリティシステム有。トイレは男女別となっておりウォシュレット完備です。 |
| 2026/4 | |
お電話でのお問い合わせはこちらから 0120-33-2303 平日9:00~21:00 土日祝対応可能


