ニュー備後町ビル
6階 22.32坪- 部屋番号
- 18317
写真をクリックすると大きく表示されます。
賃貸条件
- 賃料
- 相談
- 共益費・管理費
- 相談
- 月額合計
- 相談
- 坪単価(共益費込)
- 相談
- 入居日
- 即
- 敷金(保証金)
- 12ヶ月
- 礼金
- -
- 更新料
- -
※賃料、共益費には別途消費税が必要になります。
- 参考 本町の平均坪単価
- 11,260円
お電話でのお問い合わせはこちらから 0120-33-2303 平日9:00~21:00 土日祝対応可能
- OAフロア
- 個別空調
- セキュリティシステム
- 24時間使用可能
- 光ファイバー
- 新耐震基準
- エレベーター
- 坪単価1万以下
物件概要
| 住所 | 大阪府大阪市中央区備後町3-3-15 |
|---|---|
| 最寄り駅 |
|
| 竣工 | 1986年10月 |
| 建物階数 | 地上6階 地下1階 |
| 面積 |
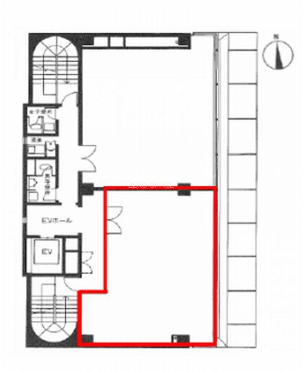
22.32坪(73.79㎡)
|
| 建物構造 | RC |
| 償却費 | - |
| 備考 | ニュー備後町ビルは大阪メトロ御堂筋線の本町駅から徒歩2分の場所に位置している地上6階建ての賃貸オフィスビルです。本町エリアで賃貸オフィス・貸事務所をお探しのお客様、条件のご相談や内覧のご要望などございましたらお気軽にゼロオフィスまでお問合せ下さいませ。 |
お電話でのお問い合わせはこちらから 0120-33-2303 平日9:00~21:00 土日祝対応可能
同じエリアのおすすめ物件
-
本町
フェニックス内本町ビル5階
- 賃料
- 相談
- 坪単価
- 相談
- 面積
- 70.67坪
- 最寄り駅
- 大阪メトロ谷町線谷町四丁目駅 徒歩6分
詳細を見る
-
本町
フェニックス内本町ビル7階
- 賃料
- 781,880円
- 坪単価
- 14,000円
- 面積
- 71.08坪
- 最寄り駅
- 大阪メトロ谷町線谷町四丁目駅 徒歩6分
詳細を見る
-
本町
BB第一ビル1階
- 賃料
- 200,000円
- 坪単価
- 15,540円
- 面積
- 12.87坪
- 最寄り駅
- 大阪メトロ四つ橋線肥後橋駅 徒歩7分
詳細を見る
-
本町
本町サザンビル5階
- 賃料
- 126,870円
- 坪単価
- 10,992円
- 面積
- 14.10坪
- 最寄り駅
- 大阪メトロ堺筋線堺筋本町駅 徒歩1分
詳細を見る
-
本町
スミヤビル2階
- 賃料
- 188,800円
- 坪単価
- 8,000円
- 面積
- 23.60坪
- 最寄り駅
- 大阪メトロ中央線堺筋本町駅 徒歩1分
詳細を見る
-
本町
第一住建本町ビル3階
- 賃料
- 137,750円
- 坪単価
- 12,000円
- 面積
- 14.50坪
- 最寄り駅
- 大阪メトロ堺筋線堺筋本町駅 徒歩3分
詳細を見る
-
本町
玉屋ビル3階
- 賃料
- 209,855円
- 坪単価
- 11,000円
- 面積
- 22.09坪
- 最寄り駅
- 大阪メトロ堺筋線堺筋本町駅 徒歩2分
詳細を見る
-
本町
本町大星ビル5階
- 賃料
- 125,820円
- 坪単価
- 9,000円
- 面積
- 13.98坪
- 最寄り駅
- 大阪メトロ御堂筋線本町駅 徒歩3分
詳細を見る
-
本町
第1シルバービル6階
- 賃料
- 187,000円
- 坪単価
- 9,350円
- 面積
- 20坪
- 最寄り駅
- 大阪メトロ御堂筋線本町駅 徒歩2分
詳細を見る
-
本町
南本町IKビル4階
- 賃料
- 199,760円
- 坪単価
- 13,500円
- 面積
- 18.16坪
- 最寄り駅
- 大阪メトロ堺筋線堺筋本町駅 徒歩1分
詳細を見る
-
本町
ナビタ灯阪ビル1階
- 賃料
- 406,700円
- 坪単価
- 14,000円
- 面積
- 29.05坪
- 最寄り駅
- 大阪メトロ中央線本町駅 徒歩4分
詳細を見る
-
本町
本町GTCビル4階
- 賃料
- 300,000円
- 坪単価
- 13,010円
- 面積
- 23.06坪
- 最寄り駅
- 大阪メトロ御堂筋線本町駅 徒歩3分
詳細を見る


